Residential

201 St Louis Ave, Egg Harbor City

$259,900

Property Details Property Details
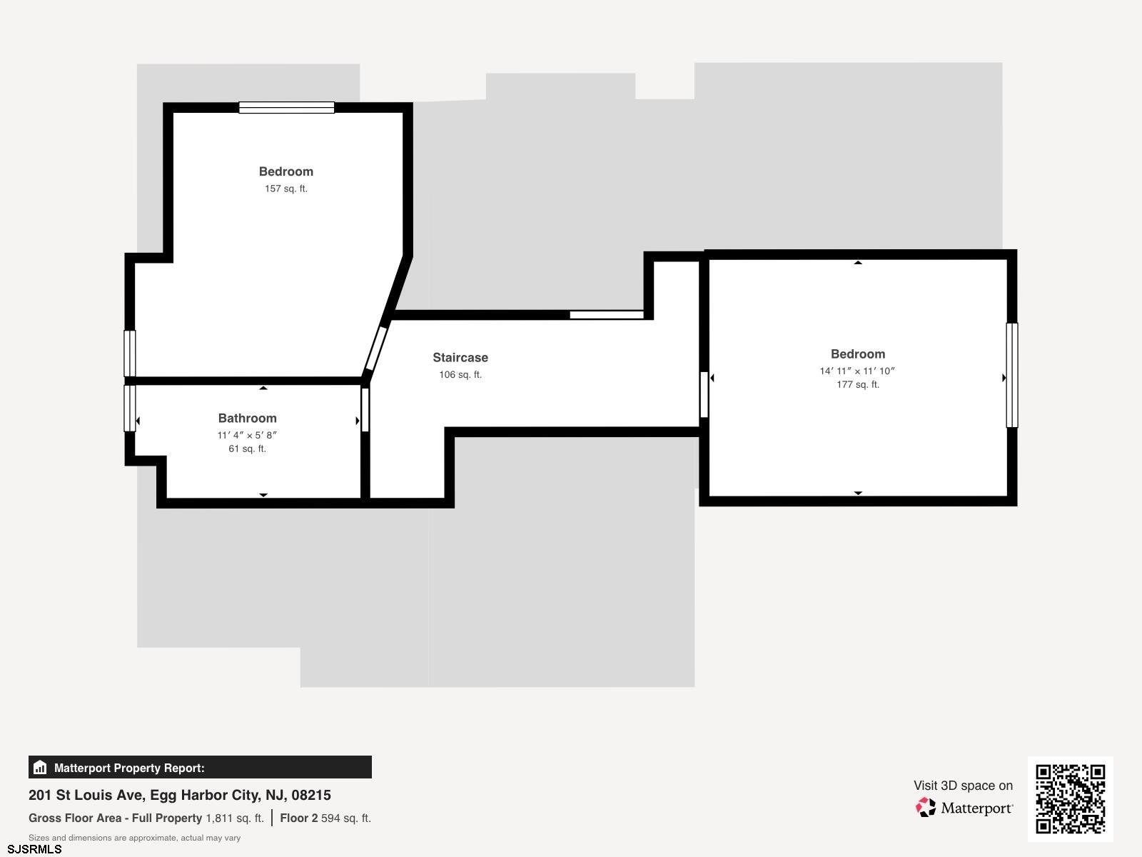
A contract has been signed, Attorney Review Up Tuesday April 14, 2025. Can show if you like to. Well Built Charming Home on the Corner, Only One Owner Built with Lots of Love and Character, Stone Accents on the Exterior and on the Fireplace, Relax on the 16X10 Covered Front Porch, Built in Custom Shelves and Cabinets in the Large Living room, The Formal Dining Room Opens to the Country Kitchen with a Brick Hearth and a Gas Wood Stove, 2 large Bedrooms and a Full Bath on the 1st Floor. More Custom Built in Cabinets in Front Bedroom, And a 9X6 Covered Rear Porch with Additional Storage Bins off the Kitchen. Stackable Washer and Dryer is located in 1st Floor Bath Closet or can be relocated back down to the Basement, 2 more nice size Bedrooms are on the 2nd Floor and another Full Bath. A Rustic feel with Cedar Covered Walls and Ceilings Upstairs. Plus a Partial Basement with an Inside and Outside Entrance Perfect for Additional Storage. New Shingled Roof in November 2025 and a New Gas Hot Water installed March 2026. First Floor has Gas Hot Water Radiator Heat and Central Air Conditioning, 2nd Floor has Electric Baseboard Heat and No Central Air. The Home has been Well Kept and Maintained But May Need a Little Updating. The Property is being Sold in AS IS Condition. The Buyer Shall be Responsible for the CO and Any Other Inspections or Repairs Necessary for Closing. The Grounds were Scanned to confirm there are No Underground tanks. Copy of report in Associated Docs. See Virtual Tour attached or Check out the Matterport Tour done by PhotoScape:https://my.matterport.com/show/?m=91yf8T9xzDh

This listing is provided courtesy of CENTURY 21 FRICK REALTORS


Bedroom 4 bedrooms
Bathroom 2 baths

  • MLS #: 606146
  • Status: Pending
  • Address: 201 St Louis Ave, Egg Harbor City, NJ 08215
  • Date Listed: 3/30/2026
  • Days on Market: 47
  • Date Sold: 5/21/2026
  • SQFT: 1887

Amenities Amenities
  • Dryer
  • Gas Stove
  • Refrigerator
  • Washer

Location Location

Interior Features Interior Features
  • Cool System: Central
  • Heat System: Gas-Natural, Hot Water, Radiator, See Remarks
  • Floors: Tile, Vinyl, W/W Carpet

Exterior Features Exterior Features
  • Parking: Two Car
  • Siding: Aluminum, Stone, Stucco
  • Exterior: Curbs, Porch, Sidewalks
  • New Construction: No

Additional Features Additional Features
  • County: Atlantic
  • Property Type: Single Family
  • Waterfront Features: No
  • Water/Sewer: Public
  • Year Built: 1945
  • Lot Number: 12.02
  • Block Number: 437
  • For Sale / Lease: For Sale
  • Taxes: 7188
  • 3rd Party Approval: No

Disclaimer:The data relating to real estate for sale on this website comes in part from both the Broker Reciprocity Program of the South Jersey Shore Regional MLS and/or the Cape May County MLS, a voluntary cooperative exchange of property listing data between licensed real estate brokerage firms. The brokers providing these listings advise interested parties to do their due diligence before relying on this information in a purchase decision. The information being provided is for the consumer's personal, non-commercial use and may not be used for any purpose other than to identify prospective properties in which they may be interested in purchasing. All information deemed reliable, but not guaranteed. All properties are subject to change.