Search
Prev
Next
Condo / Villa

105-111 8th St Street, Ocean City

$1,299,000

Property Details Property Details
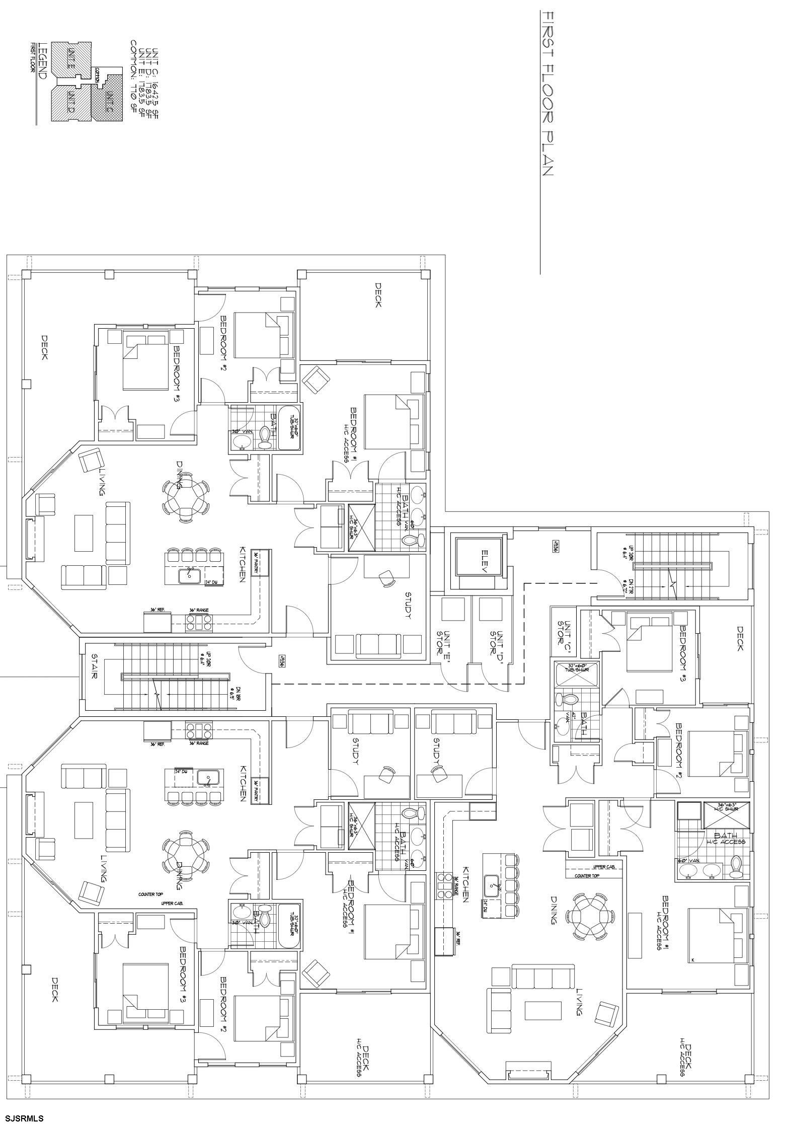
Designed for buyers who value space and location, Unit D at The Haven on Eighth delivers 1,780 square feet of well-planned living space, rarely found in central Ocean City. This home features interiors professionally curated and built by L&D Design and Construction and expansive living areas that flow seamlessly to two open decks positioned for sunset views over the bay, thanks to the buildings prime corner-lot setting. The flexible study serves as a fourth bedroom or inviting family room for gatherings. Elevator service, covered garage parking, and early customization opportunities with the design team to further enhance the offering. Centrally located just steps to Asbury Avenue and a short walk to the beach and boardwalk. Estimated delivery September 2026.

This listing is provided courtesy of GOLDCOAST SOTHEBY'S INTERNATIONAL REALTY


Bedroom 4 bedrooms
Bathroom 2 baths

  • MLS #: 603889
  • Status: Active
  • Address: 105-111 8th St Street, Ocean City, NJ 08226
  • Date Listed: 1/16/2026
  • Days on Market: 126
  • SQFT: 1783

Amenities Amenities
  • Central Vacuum
  • Dishwasher
  • Disposal
  • Dryer
  • Gas Stove
  • Microwave
  • Refrigerator
  • Self Cleaning Oven
  • Washer

Location Location

Interior Features Interior Features
  • Cool System: Central
  • Heat System: Gas-Natural

Exterior Features Exterior Features
  • Parking: Two Car
  • Exterior: Brick Face, Vinyl
  • New Construction: Yes

Additional Features Additional Features
  • County: Cape May
  • Property Type: Condo
  • Waterfront Features: No
  • Water/Sewer: Public Water
  • Lot Number: 16
  • Block Number: 710
  • 3rd Party Approval: No

Disclaimer:The data relating to real estate for sale on this website comes in part from both the Broker Reciprocity Program of the South Jersey Shore Regional MLS and/or the Cape May County MLS, a voluntary cooperative exchange of property listing data between licensed real estate brokerage firms. The brokers providing these listings advise interested parties to do their due diligence before relying on this information in a purchase decision. The information being provided is for the consumer's personal, non-commercial use and may not be used for any purpose other than to identify prospective properties in which they may be interested in purchasing. All information deemed reliable, but not guaranteed. All properties are subject to change.