Commercial

3809 Ventnor Ave, Atlantic City

$1,995,000

Property Details Property Details
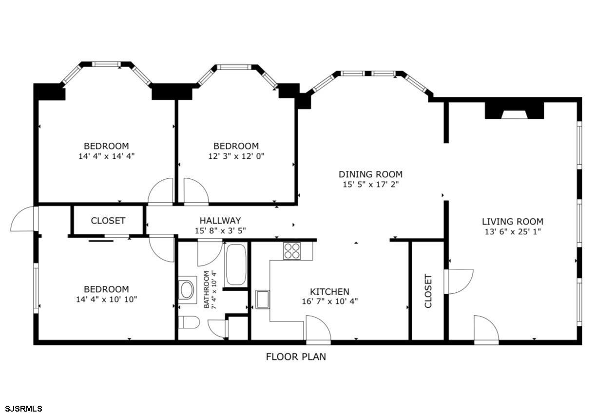
A fully renovated, nine-unit multifamily building in Lower Chelsea, directly across from Stockton Universitys Island Campus and just two blocks from the beach and boardwalk. The property features seven spacious three-bedroom units, one two-bedroom unit, and one one-bedroom unit. Five units are currently leased on annual terms, while four units are vacant and ready for immediate occupancy. The building is already condo-converted, offering buyers the flexibility to hold as a long-term rental investment or sell units individually. This dual exit strategy offers investors a powerful upside, providing both long-term appreciation and short-term disposition opportunities. Six units offer deeded riparian rights supporting up to six boat slips. Recent improvements include a new bulkhead, new electric with permits, upgraded panels and wiring, new HVAC systems, approximately 80% new plumbing stacks, a new sewer line to the street, recent roof re-lining, eight tons of gravel added to the rear yard, removal of the original boiler, and major structural reinforcement throughout the building with steel I-beams and sistered support posts. The property is secured with fencing, digital lock access, and a sixteen-camera security system. Many units offer water views and feature central A/C, gas heating, and gas cooking. Units A, B, C, 1, 3, and 5 were fully renovated, while units 2, 4, and 6 have been recently updated. Located on the Ventnor border, the building benefits from excellent proximity to restaurants, grocery stores, pharmacies, retail corridors, and Atlantic Citys major casinos and attractions. Public transportation stops are located directly out front.

This listing is provided courtesy of eXp Realty-Northfield


Bedroom bedrooms

  • MLS #: 602801
  • Status: Active
  • Address: 3809 Ventnor Ave, Atlantic City, NJ 08401
  • Date Listed: 12/1/2025
  • Days on Market: 82

Location Location

Interior Features Interior Features
  • Cool System: Central
  • Heat System: Forced Air, Gas-Natural
  • Floors: Linoleum/Vinyl
  • Rooms: Security System, Smoke/Fire Alarm, Storage

Additional Features Additional Features
  • County: Atlantic
  • Waterfront Features: Yes
  • Water/Sewer: Public
  • Year Built: 1939
  • Lot Number: 22
  • Block Number: 236
  • For Sale / Lease: For Sale
  • Taxes: 26526
  • 3rd Party Approval: No

Disclaimer:The data relating to real estate for sale on this website comes in part from both the Broker Reciprocity Program of the South Jersey Shore Regional MLS and/or the Cape May County MLS, a voluntary cooperative exchange of property listing data between licensed real estate brokerage firms. The brokers providing these listings advise interested parties to do their due diligence before relying on this information in a purchase decision. The information being provided is for the consumer's personal, non-commercial use and may not be used for any purpose other than to identify prospective properties in which they may be interested in purchasing. All information deemed reliable, but not guaranteed. All properties are subject to change.