Residential

400 Dolphin Ave Ave, Northfield

$444,900

Property Details Property Details
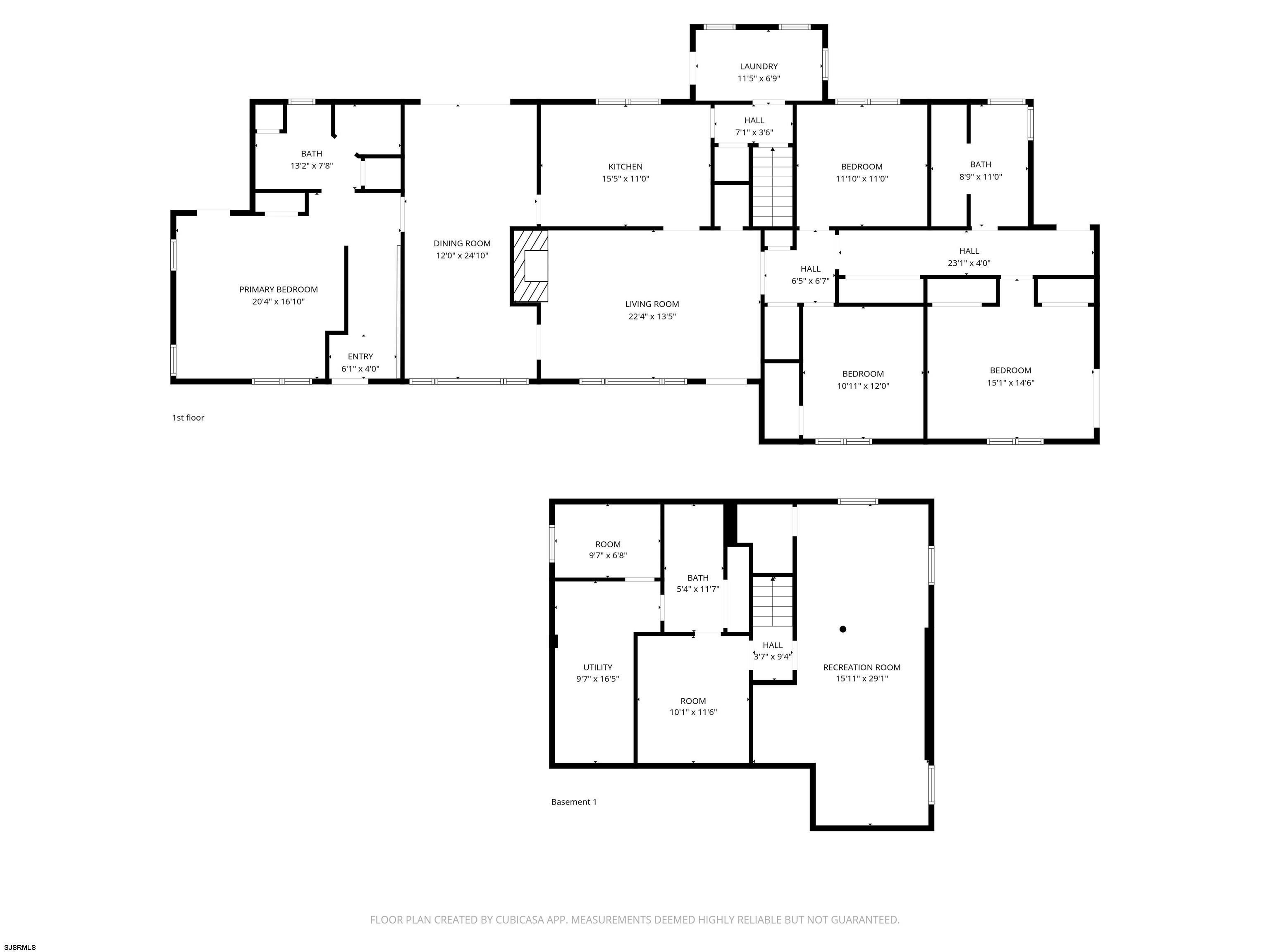
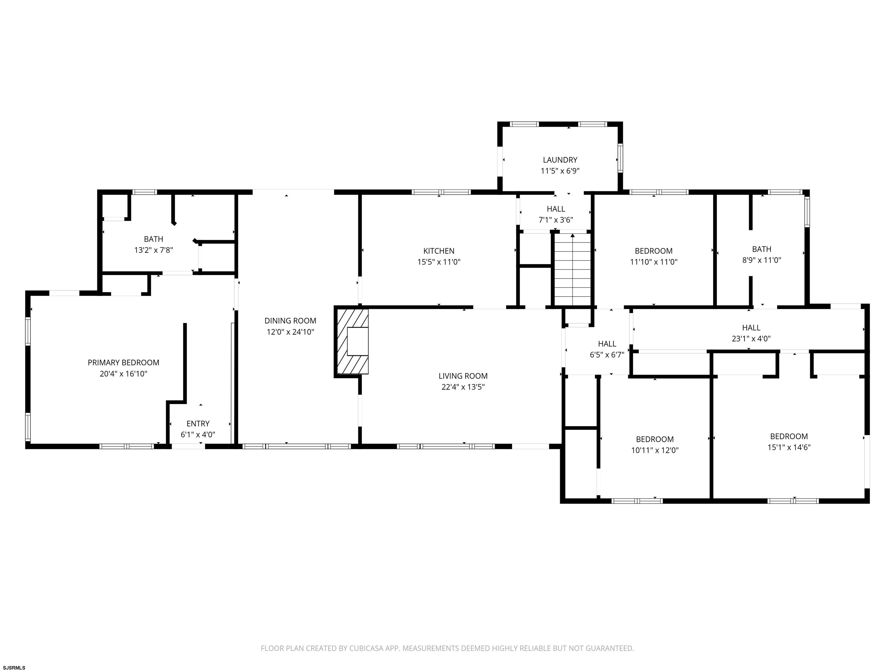
This house is very deceiving from outside. Much bigger than it looks. Great large ranch home on convenient street close to transportation, shopping and more. 4 bed 2 bath with a full finished basement with potential for 3rd bath. Recently updated kitchen and bath. Kitchen boasts a large sink with built in rim for drying rack and cutting board and convenient double oven! Beautiful backyard to relax in the inground pool with newer liner replaced in 2022. Newer back deck and lots of greenery for serene outdoor living. Solar is financed and SRECs are available. So many features to make this a great place for your next chapter! Check out the website for this property below! https://shaun-reilly-photography.aryeo.com/sites/400-dolphin-ave-northfield-nj-08225-20619193/branded

This listing is provided courtesy of CENTURY 21 ATLANTIC PROFESSIONAL REALTY


Bedroom 4 bedrooms
Bathroom 2 baths

  • MLS #: 602474
  • Status: Pending
  • Address: 400 Dolphin Ave Ave, Northfield, NJ 08225
  • Date Listed: 11/17/2025
  • Days on Market: 141
  • SQFT: 2414

Location Location

Interior Features Interior Features
  • Cool System: Ceiling Fan(s), Central
  • Heat System: Gas-Natural
  • Floors: Tile, Vinyl Plank, Wood

Exterior Features Exterior Features
  • Parking: Three or More Cars
  • Exterior: Deck, Fenced Yard, Pool-In Ground, Shed
  • New Construction: No

Additional Features Additional Features
  • County: Atlantic
  • Property Type: Single Family
  • Waterfront Features: No
  • Water/Sewer: Public
  • Year Built: 1956
  • Lot Number: 11
  • Block Number: 130
  • For Sale / Lease: For Sale
  • Taxes: 8099
  • 3rd Party Approval: No

Disclaimer:The data relating to real estate for sale on this website comes in part from both the Broker Reciprocity Program of the South Jersey Shore Regional MLS and/or the Cape May County MLS, a voluntary cooperative exchange of property listing data between licensed real estate brokerage firms. The brokers providing these listings advise interested parties to do their due diligence before relying on this information in a purchase decision. The information being provided is for the consumer's personal, non-commercial use and may not be used for any purpose other than to identify prospective properties in which they may be interested in purchasing. All information deemed reliable, but not guaranteed. All properties are subject to change.