Residential

28 New York Ave, Somers Point

$629,000

Property Details Property Details
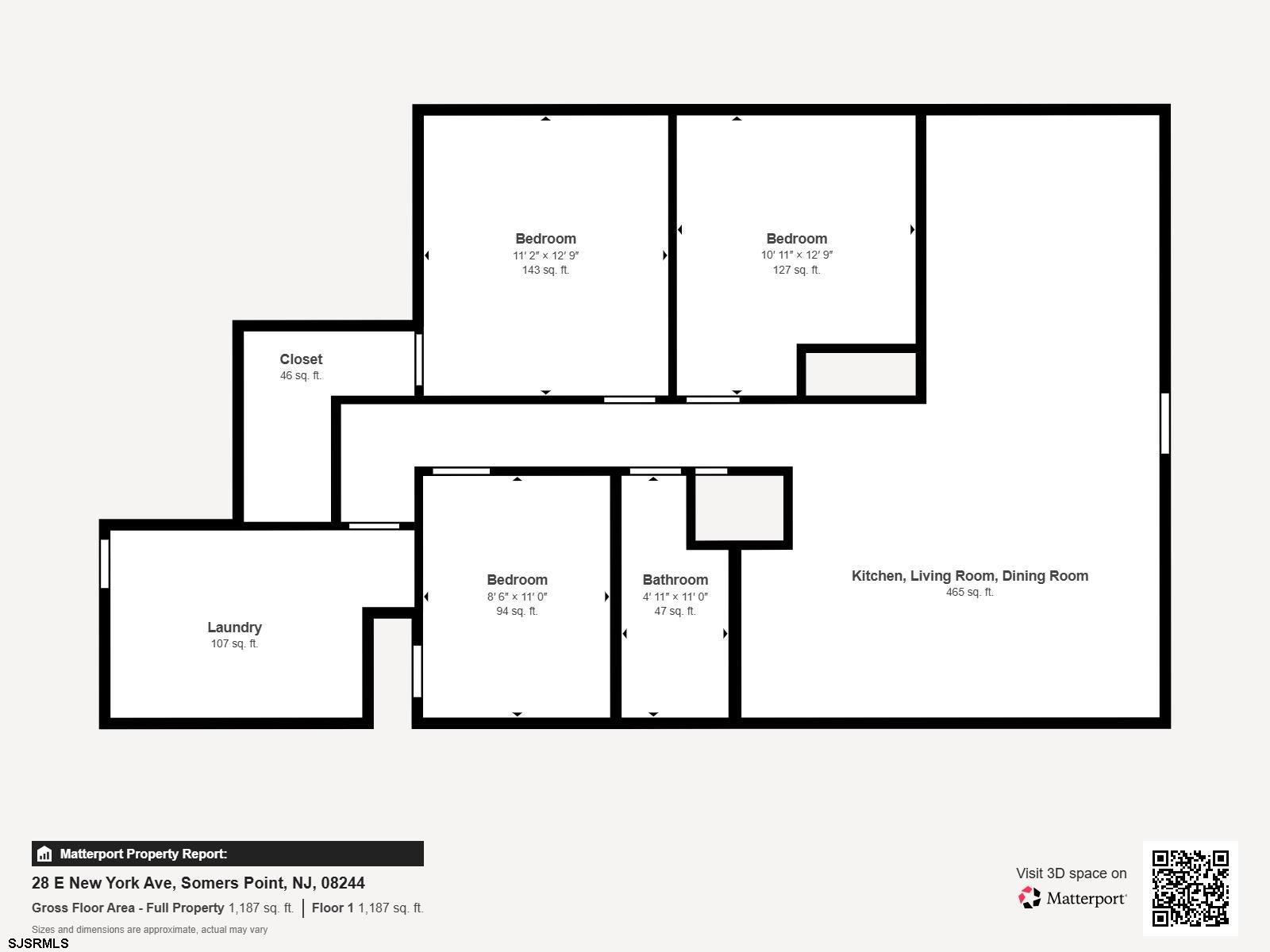
Beautifully updated rancher in the highly desirable Bay District of Somers Point, just a block to the bay, across from Shore Memorial Hospital, and walking distance to the new Paddle Club, the Anchorage, CJ's, other fine restaurants, the Somers Point beach, boating, summer time Friday night beach concerts and more! This home offers the perfect combination of comfort, convenience, and coastal lifestyle. From the moment you arrive, the curb appeal shines with lovely landscaping, a white vinyl fence, upgraded paver walkway, Trex steps and decking, and a charming covered front porch accented by light blue siding and a cool green door. Off-street parking for two + cars and a convenient outdoor shower add to the homes beachside charm. Step inside to a warm and inviting living space anchored by a cozy gas fireplace and stylish ceiling fan. The kitchen is a showstopperfeaturing soft close cabinetry, granite countertops, stainless KitchenAid appliances, a five-burner gas stove, tile backsplash, pendant lighting over the breakfast bar and slate tile flooring. The bathroom continues the quality finishes with matching slate tile, granite countertops, excellent cabinetry, and generous storage. This home includes three generously sized bedrooms, all with carpeting, and the primary with a huge walk-in closet with custom built-ins. The oversized laundry room is a highly functioning, offering slate tile floors, a sink, washer/dryer, tankless hot water heater, and abundant storage. Outside, the fully fenced backyard is designed for entertaining and relaxation, with a paver patio, covered seating area, lovely landscaping and a newer storage shed. This is truly a move-in ready home in one of Somers Points most desirable locationsideal as a year-round residence, a shore retreat, or an investment opportunity.

This listing is provided courtesy of PLATINUM REAL ESTATE


Bedroom 3 bedrooms
Bathroom 1 baths

  • MLS #: 601233
  • Status: Active
  • Address: 28 New York Ave, Somers Point, NJ 08244
  • Date Listed: 10/8/2025
  • Days on Market: 136

Amenities Amenities
  • Dishwasher
  • Disposal
  • Dryer
  • Gas Stove
  • Microwave
  • Refrigerator
  • Washer

Location Location

Interior Features Interior Features
  • Cool System: Ceiling Fan(s), Central, Gas
  • Heat System: Forced Air, Gas-Natural
  • Floors: Hardwood, Laminate Flooring, W/W Carpet, Wood
  • Rooms: Smoke/Fire Alarm, Storage, Walk In Closet

Exterior Features Exterior Features
  • Parking: Two Car
  • Siding: Vinyl
  • Exterior: Curbs, Fenced Yard, Outside Shower, Patio, Paved Road, Porch, Porch Enclosed, Shed, Sidewalks, Sprinkler System
  • New Construction: No

Additional Features Additional Features
  • County: Atlantic
  • Property Type: Single Family
  • Waterfront Features: No
  • Water/Sewer: Public
  • Year Built: 1946
  • Lot Number: 29
  • Block Number: 1512
  • For Sale / Lease: For Sale
  • Taxes: 7953
  • 3rd Party Approval: No

Disclaimer:The data relating to real estate for sale on this website comes in part from both the Broker Reciprocity Program of the South Jersey Shore Regional MLS and/or the Cape May County MLS, a voluntary cooperative exchange of property listing data between licensed real estate brokerage firms. The brokers providing these listings advise interested parties to do their due diligence before relying on this information in a purchase decision. The information being provided is for the consumer's personal, non-commercial use and may not be used for any purpose other than to identify prospective properties in which they may be interested in purchasing. All information deemed reliable, but not guaranteed. All properties are subject to change.