Commercial

614-626 Union Road, Buena Vista Township

$899,000

Property Details Property Details
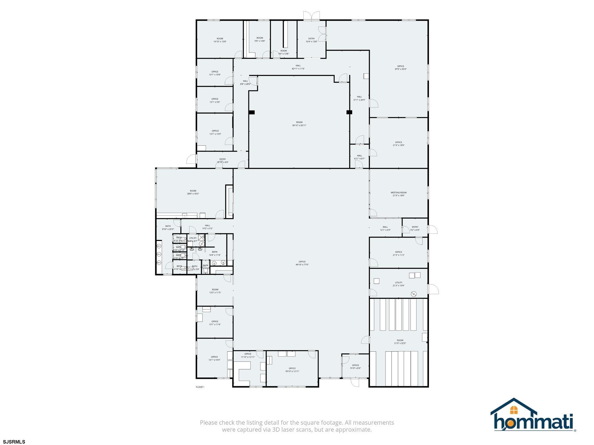
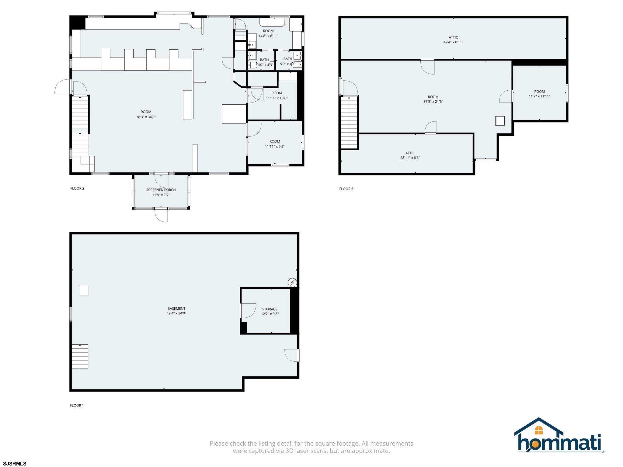
*** Property is now being sold at an upcoming online auction event; bidding dates February 23-25, 2026. Call for auction bidding details! *** Why settle for one commercial building when you can have three? Presenting an incredible opportunity at the corner of Landis Ave & Union Rd in East Vineland, Buena Vista Twp, Atlantic County, NJfeaturing three buildings totaling over 25,000 sq. ft. on just over 7 acres, all with two separate zoning districts offering versatile possibilities. The corner building, approximately 1,600 sq. ft., was formerly a bank and sits in the B1 Business District, which allows for a wide range of uses including retail, restaurants, offices, banks, hotels, service businesses, recreational facilities, schools, churches, libraries, hospitals, clinics, and supporting uses like parking and signage. The two larger adjoining buildingsconnected by a breezewayonce served as bank operations and headquarters. Building A is 11,963 sq. ft., and Building B is 12,025 sq. ft. Both fall within the RA Residence Agriculture District, which permits single-family homes, farming (excluding large-scale livestock), farm markets, greenhouses, schools, parks, churches, medical offices, animal clinics, kennels, and related accessory uses. Vacant for several years, these buildings are primed for rehab and clean-up, with an incredible ARV potential. Listed at just $35 per sq. ft., this is a true value-add opportunity. Whether youre an investor, entrepreneur, or owner-occupant seeking space for your business, this property offers unmatched potential with plenty of parking on a spacious corner lot. Zoning details and floor plans are availablecontact us today for more information!

This listing is provided courtesy of eXp Realty - Montclair


Bedroom bedrooms

  • MLS #: 600950
  • Status: Pending
  • Address: 614-626 Union Road, Buena Vista Township, NJ 08360
  • Date Listed: 9/28/2025
  • Days on Market: 195
  • Date Sold: 4/30/2026

Location Location

Additional Features Additional Features
  • County: Atlantic
  • Waterfront Features: No
  • Water/Sewer: Private, Well
  • Year Built: 1988
  • Lot Number: 16 / 14.02
  • Block Number: 7701
  • For Sale / Lease: For Sale
  • Taxes: 38935
  • 3rd Party Approval: No

Disclaimer:The data relating to real estate for sale on this website comes in part from both the Broker Reciprocity Program of the South Jersey Shore Regional MLS and/or the Cape May County MLS, a voluntary cooperative exchange of property listing data between licensed real estate brokerage firms. The brokers providing these listings advise interested parties to do their due diligence before relying on this information in a purchase decision. The information being provided is for the consumer's personal, non-commercial use and may not be used for any purpose other than to identify prospective properties in which they may be interested in purchasing. All information deemed reliable, but not guaranteed. All properties are subject to change.