Condo / Villa

308 Lincoln Avenue, Wildwood

$799,995

Property Details Property Details
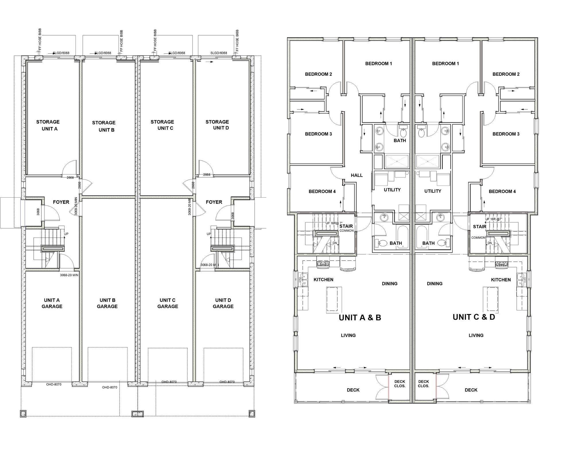
TOP FLOOR UNIT B- Top left unit. Located in the heart of Wildwood just moments from the pristine beaches and boardwalk, this exceptional new construction opportunity offers the very best of shore living. Enjoy convenient access to the areas most celebrated attractions, including the historic Cape May Lighthouse, the popular Cape May County Park & Zoo, the scenic beauty of Sunset Beach, and the iconic Wildwood Boardwalk. Marinas, golf courses, nature trails, boutique shopping, and renowned local dining are all just minutes away, making this an ideal year-round destination or investment opportunity. Take ownership Fall 2026. Perfectly positioned just blocks from the Wildwood beach and the exciting new Bay Avenue redevelopment, 308 W. Lincoln Avenue features four newly constructed condominium residences. Thoughtfully designed by DJB Architects and expertly crafted by Falasca Builders, each home offers approximately 1,442 square feet of well-planned, modern living space. The exterior design showcases timeless coastal architecture with premium materials and striking contrast. The building will feature James Hardie Statement Collection Cement Cedar Mill siding in the elegant Light Mist color, complemented by bold black windows and a black rear and center roofline. Crisp white vertical siding accents add architectural interest, while MSI Golden Honey Stacked Stone surrounds the garage doors and enhances the lower columns, creating a sophisticated and durable streetscape presence. This spacious single-level floor plan includes four bedrooms, two full bathrooms, a private garage, and additional of storage with access to a private yard seamlessly blending the low-maintenance convenience of condominium ownership with the comfort and privacy of a single-family home. The open-concept main living area is filled with natural light and designed for effortless entertaining. A large kitchen with a modern center island flows seamlessly into the dining and living spaces, with sliding doors leading to a covered front porch, perfect for relaxing after a day at the beach. Four generously sized bedrooms provide ample space for family and guests, highlighted by a private owners suite featuring a walk-in closet and a beautifully appointed bath with dual vanity. A full hall bath, laundry room, and abundant storage complete the home with both functionality and style. Each residence reflects Falasca Builders signature craftsmanship and attention to detail. Buyers have the opportunity to personalize select finishes prior to construction completion. Buyers may enjoy reduced property taxes in the early years after construction, easing carrying costs and improving investment ROI due to Wildwood New Construction Tax Abatement Incentive. Photos are representative of the floor plan and may vary as built.

This listing is provided courtesy of FERGUSON-DECHERT, INC


Bedroom 4 bedrooms
Bathroom 2 baths

  • MLS #: 260564
  • Status: Active
  • Address: 308 Lincoln Avenue, Wildwood, NJ 08260
  • Date Listed: 3/10/2026
  • Days on Market: 0
  • Stipulations: No

Amenities Amenities
  • Range
  • Self-Clean Oven
  • Microwave Oven
  • Refrigerator
  • Washer
  • Dryer
  • Dishwasher
  • Disposal
  • Smoke/Fire Detector

Interior Features Interior Features
  • Cool System: Central Air, Ceiling Fan
  • Heat System: Gas Natural, Forced Air
  • Rooms: Living Room, Kitchen, Eat In Kitchen, Dining Area, Laundry/Utility Room, Storage Space, Other
  • Hot Water: Gas

Exterior Features Exterior Features
  • New Construction: Yes

Additional Features Additional Features
  • County: Cape May County
  • Property Type: Condo
  • Water/Sewer: City
  • Year Built: 2026
  • Lot Number: 22
  • Block Number: 161
  • Associated Document Count: 0
  • District/Township: 13-W. Wildwood
  • For Sale / Lease: For Sale
  • Taxes: 88888888
  • Total Rooms: 8
  • 3rd Party Approval: No

Disclaimer:The data relating to real estate for sale on this website comes in part from both the Broker Reciprocity Program of the South Jersey Shore Regional MLS and/or the Cape May County MLS, a voluntary cooperative exchange of property listing data between licensed real estate brokerage firms. The brokers providing these listings advise interested parties to do their due diligence before relying on this information in a purchase decision. The information being provided is for the consumer's personal, non-commercial use and may not be used for any purpose other than to identify prospective properties in which they may be interested in purchasing. All information deemed reliable, but not guaranteed. All properties are subject to change.