Search
Prev
Next
Residential

10 Priest Boulevard, Rio Grande

$199,500

Property Details Property Details
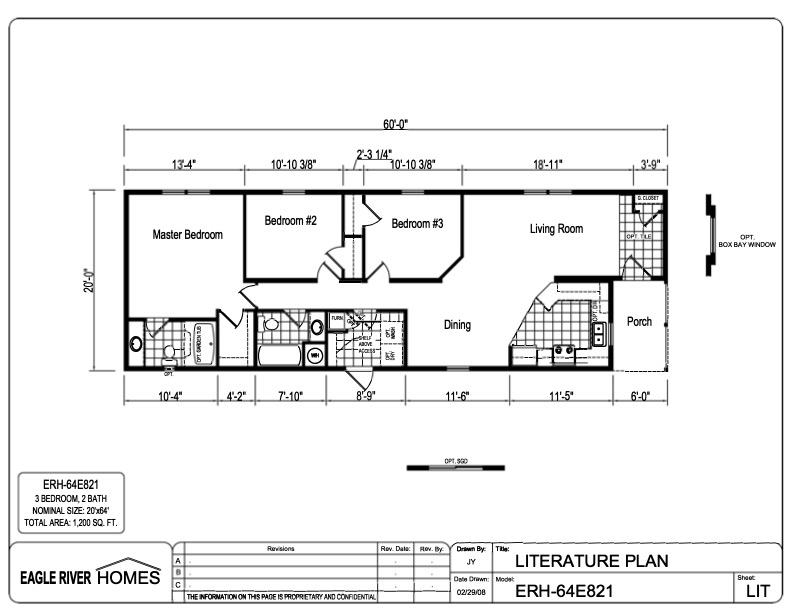
The Home is a 2026 Eagle River 20' X 60", 3 bedroom, 2 bath Manufactured Home to be put on site 10 Priest Blvd., Rio Grande, NJ 08242 in Grande Woods South Manufactured Home Community. The picture provided is an exact replica of the ordered home except for the color. the floor plan is an exact replica of the home's floorplan. Residents must sign a land lease including rules and regulations, and must meet all the landlords requirements for occupancy, financial and otherwise, a minimum 700 credit score, income not less that 4 times monthly rent ... call for details. Monthly Rent is $950 and includes Water, Sewer, trash and recycle pickup and admission to community pool. All residents must have and maintain required insurance. An interested party can post a $25,000 deposit and we'll take the house off the market. When the home is onsite and "set-up" the buyer will be given 7 days to confirm the sale and proceed to closing. If Buyer does not wish to proceed they must notify seller immediately after inspection and the deposit will be refunded and contract cancelled.

This listing is provided courtesy of CAPE POINT REALTY


Bedroom 3 bedrooms
Bathroom 2 baths

  • MLS #: 253181
  • Status: Pending
  • Address: 10 Priest Boulevard, Rio Grande, NJ 08242
  • Date Listed: 10/28/2025
  • Days on Market: 206
  • Date Sold: 7/1/2026
  • SQFT: 1200
  • Stipulations: No

Amenities Amenities
  • Range
  • Self-Clean Oven
  • Microwave Oven
  • Refrigerator
  • Dishwasher
  • Smoke/Fire Detector
  • Stove Natural Gas

Location Location

Interior Features Interior Features
  • Cool System: Central Air Condition
  • Heat System: Gas Natural, Forced Air
  • Rooms: Living Room, Dining Room, Kitchen, 1st Floor Primary Bedroom
  • Interior: Walk in Closet
  • Hot Water: Gas- Natural

Exterior Features Exterior Features
  • Parking: 2 Car
  • Siding: Ranch, A Frame
  • Exterior: Porch
  • New Construction: Yes

Additional Features Additional Features
  • County: Cape May
  • Property Type: Manufactured
  • Water/Sewer: Public
  • Year Built: 2026
  • Lot Size: 40 X 80
  • Lot Number: 10
  • Block Number: 1436.01
  • Associated Document Count: 1
  • District/Township: 06-Middle Township
  • For Sale / Lease: For Sale
  • Taxes: 0
  • Total Rooms: 9
  • 3rd Party Approval: No

Disclaimer:The data relating to real estate for sale on this website comes in part from both the Broker Reciprocity Program of the South Jersey Shore Regional MLS and/or the Cape May County MLS, a voluntary cooperative exchange of property listing data between licensed real estate brokerage firms. The brokers providing these listings advise interested parties to do their due diligence before relying on this information in a purchase decision. The information being provided is for the consumer's personal, non-commercial use and may not be used for any purpose other than to identify prospective properties in which they may be interested in purchasing. All information deemed reliable, but not guaranteed. All properties are subject to change.