Condo / Villa

1045-1047 Lafayette Street, Cape May

$819,900

Property Details Property Details
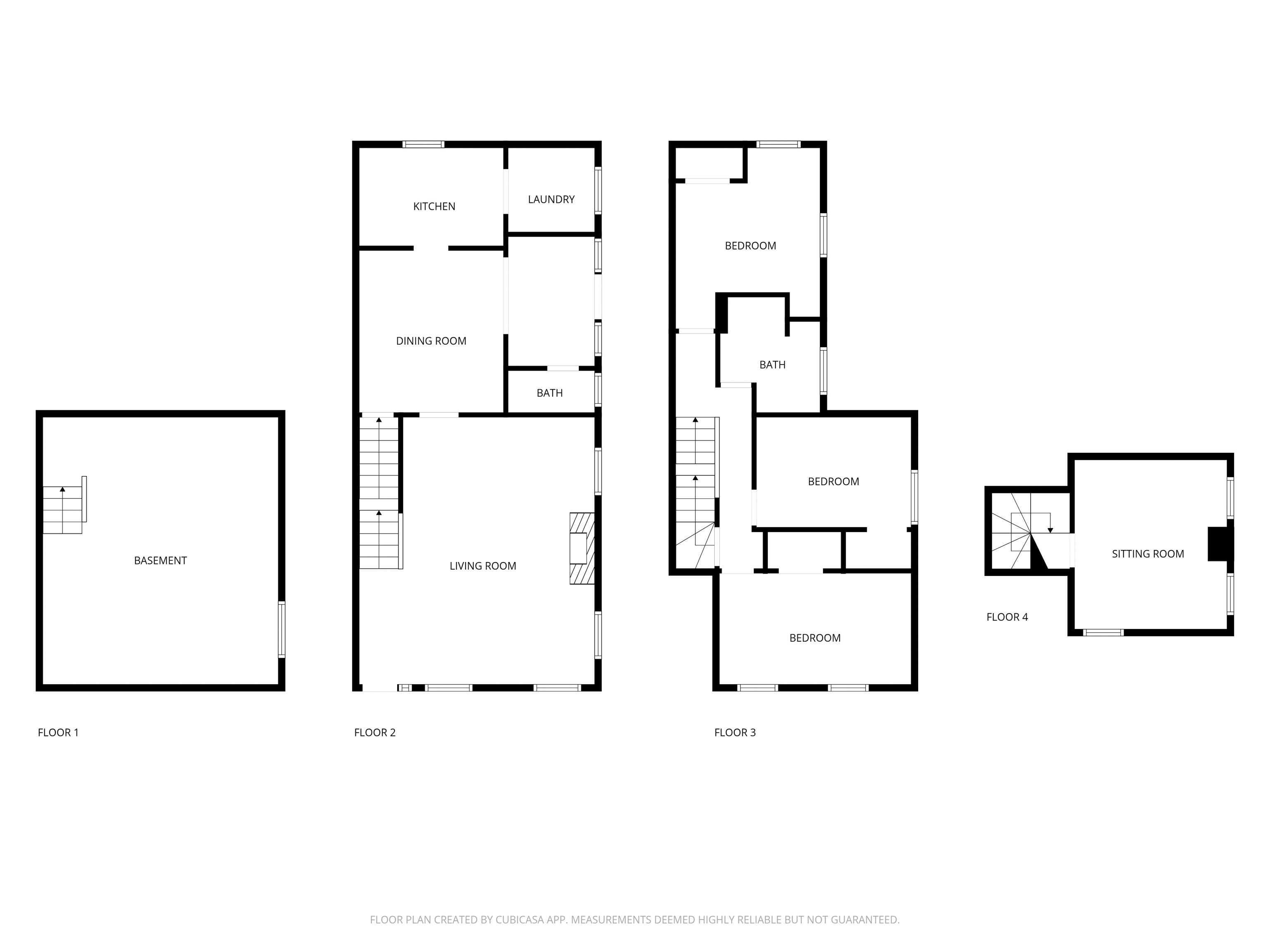
Historic charm meets modern living in this beautifully restored 1875 home. This spacious townhouse offers 3 bedrooms, 2 full baths, and three finished levels of living space, totaling more than 1900sqft! The first floor features a large living room with a shiplap accent wall, a formal dining room, and an updated kitchen with matching shiplap detail. A full bathroom, laundry area, and private side entrance to an exclusive outdoor space for dining and entertaining. Upstairs you'll find three bedrooms and a stylish full bath with tiled shower surround and seamless glass door. The finished attic offers flexible space for a home office, gym, or creative retreat. Additional perks include a partial basement, a dedicated 1-car garage, 2 parking spaces as well as ample storage. Part of a 3-unit association on a large lot, this unique property is in close proximity to downtown and just footsteps to tree lined Washington Street, offering excellent investment potential.

This listing is provided courtesy of deSatnick Real Estate LLC - Cape May


Bedroom 3 bedrooms
Bathroom 2 baths

  • MLS #: 253147
  • Status: Pending
  • Address: 1045-1047 Lafayette Street, Cape May, NJ 08204
  • Date Listed: 10/23/2025
  • Days on Market: 121
  • Date Sold: 3/6/2026
  • Stipulations: No

Amenities Amenities
  • Range
  • Self-Clean Oven
  • Washer
  • Dryer
  • Dishwasher
  • Smoke/Fire Detector
  • Stainless Steel Appliance

Location Location

Interior Features Interior Features
  • Cool System: Other
  • Heat System: Gas Natural, Baseboard, Hot Water
  • Rooms: Living Room, Dining Room, Kitchen, Storage Space
  • Hot Water: Gas

Exterior Features Exterior Features
  • New Construction: No

Additional Features Additional Features
  • County: Cape May County
  • Property Type: Townhouse
  • Water/Sewer: City
  • Year Built: 1865
  • Lot Number: 66
  • Block Number: 1061
  • Associated Document Count: 4
  • District/Township: 02-Cape May City
  • For Sale / Lease: For Sale
  • Taxes: 3961.03
  • Total Rooms: 10
  • 3rd Party Approval: No

Disclaimer:The data relating to real estate for sale on this website comes in part from both the Broker Reciprocity Program of the South Jersey Shore Regional MLS and/or the Cape May County MLS, a voluntary cooperative exchange of property listing data between licensed real estate brokerage firms. The brokers providing these listings advise interested parties to do their due diligence before relying on this information in a purchase decision. The information being provided is for the consumer's personal, non-commercial use and may not be used for any purpose other than to identify prospective properties in which they may be interested in purchasing. All information deemed reliable, but not guaranteed. All properties are subject to change.