Residential

506 Hagen Road, South Dennis

$657,000

Property Details Property Details
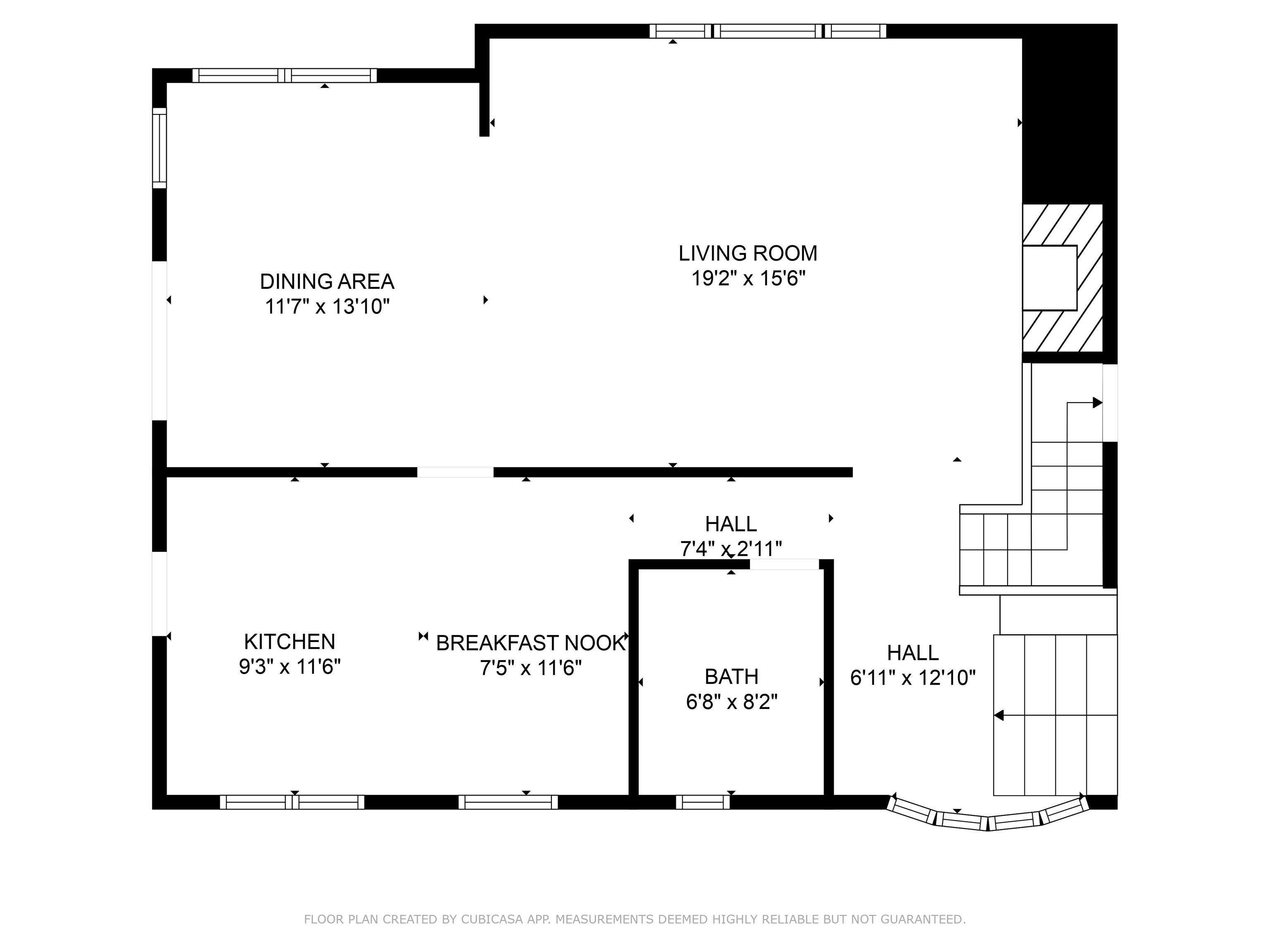
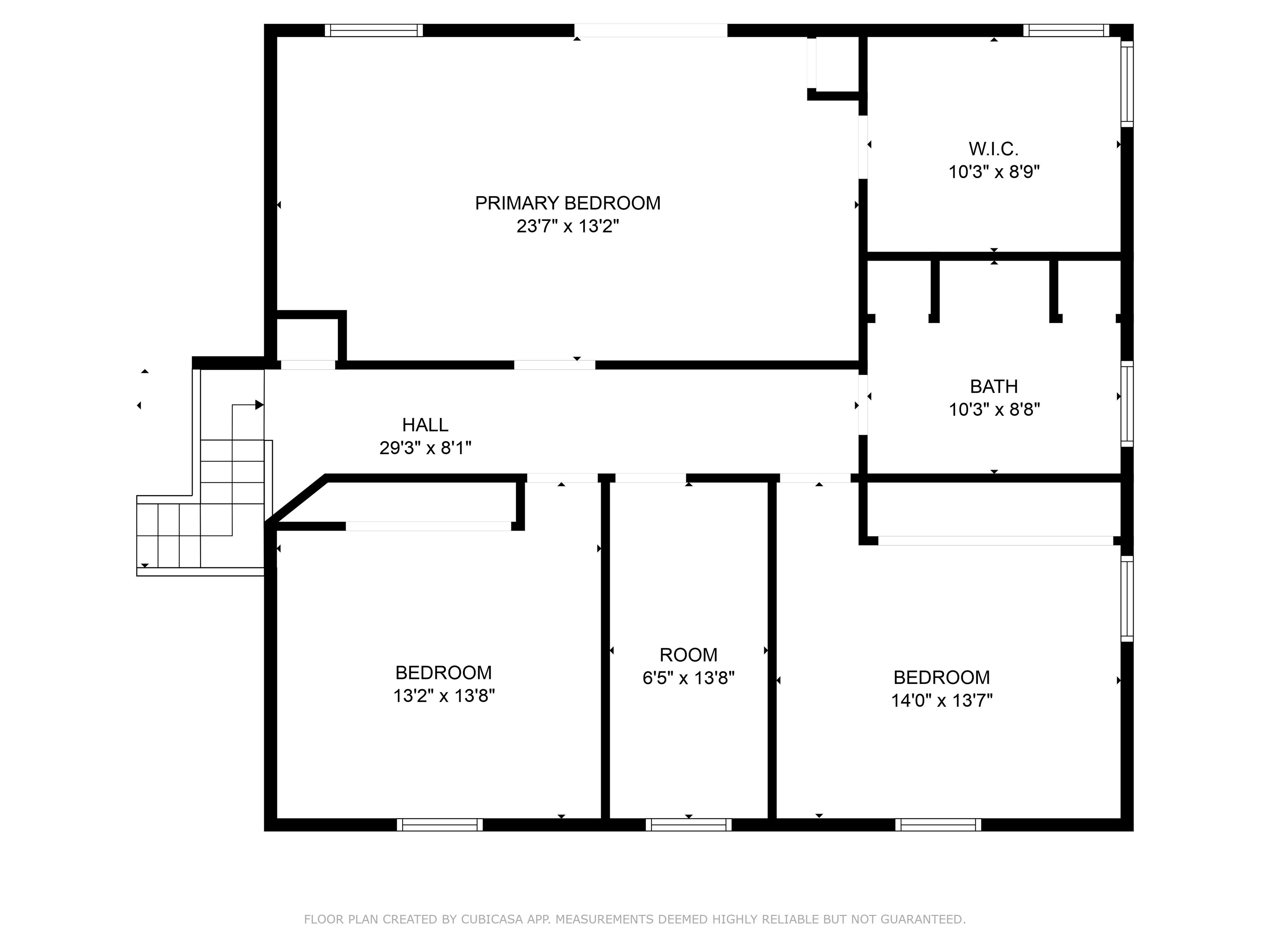
Split-Level Stone-Front on 5.34 Acres Subdividable VR Lot-- They dont make them like this anymore. This spacious split-level with classic stone front offers ~2,500 sq ft, 3 bedrooms, 2.5 baths, and an office. Inside: a large tiled family room with stone-walled fireplace/wood-burning stove opening to a screened porch; living room with stone-front gas fireplace and adjoining dining room; eat-in kitchen; and a laundry room off the family room. The primary bedroom has a walk-in closet and private deck overlooking the grounds. A two-car garage, horseshoe driveway, and gutter leaf protection add convenience. Outdoor living shines: expansive deck, bocce court, fire-pit with benches, walking trails, multiple seating areas, and five outbuildings (two-story shed w/ electric, another w/ electric + heat, a shed w/ chicken coop, an additional shed, and a greenhouse). **Zoned VR (Village Residential), which permits *residential agriculture*including keeping livestock such as horsessubject to Township regulations; buyers to verify intended use with zoning.** **Subdivision potential:** Minimum lot size appears to be 35,000 sq ft with typical 100×200 dimensions. With removal of the existing house, the property would appear to conform to a 4-lot subdivision; with the existing house, a flag lot may be possible. *(Buyer is solely responsible for all due diligencesurveys, engineering, zoning verification, subdivision approvals, utilities, and permits. Neither seller nor broker make representations or guarantees regarding feasibility.)* Or simply keep all 5.34 acres as your private sanctuary. Sale is **AS-IS** --Seller will make no repairs. A rare blend of strong bones, endless potential, and a setting that feels like a wooded retreatyet only ~15 minutes to Sea Isle City or Avalon. Schedule your private tour today.

This listing is provided courtesy of RE/MAX SURFSIDE


Bedroom 4 bedrooms
Full Bathroom 2 full baths
Half Baths 1 half baths

  • MLS #: 252345
  • Status: Active
  • Address: 506 Hagen Road, South Dennis, NJ 08210-1207
  • Date Listed: 8/8/2025
  • Days on Market: 197
  • SQFT: 2582
  • Stipulations: No

Amenities Amenities
  • Range
  • Oven
  • Microwave Oven
  • Refrigerator
  • Washer
  • Dryer
  • Dishwasher
  • Smoke/Fire Detector
  • Stove Electric
  • Stainless steel appliance
  • Generator

Location Location

Interior Features Interior Features
  • Cool System: Wall Air Conditioning, Window Air Conditioning
  • Heat System: Gas Natural, Gas Propane, Baseboard, Forced Air, Multi-Zoned
  • Rooms: Living Room, Dining Room, Kitchen, Recreation/Family, Eat-In-Kitchen, Laundry/Utility Room, Library/Study, Storage Attic
  • Interior: Fireplace- Gas, Smoke/Fire Alarm, Storage, Walk in Closet, Wall to Wall Carpet, Wood Burning Stove, Tile Flooring, Generator, Security Camera
  • Hot Water: Gas- Natural

Exterior Features Exterior Features
  • Parking: Garage, 2 Car, Attached, Concrete Driveway, 4 car parking, Gravel Driveway
  • Siding: Split Level
  • Exterior: Deck, Porch, Screened Porch, Storage Building, Cable TV
  • New Construction: No

Additional Features Additional Features
  • County: Cape May
  • Property Type: Single Family
  • Water/Sewer: Septic
  • Year Built: 1973
  • Lot Size: 5.34 acres
  • Lot Number: 97.01
  • Block Number: 98
  • Associated Document Count: 4
  • District/Township: 04-Dennis Township
  • For Sale / Lease: For Sale
  • Taxes: 7111.65
  • Total Rooms: 13
  • 3rd Party Approval: No

Disclaimer:The data relating to real estate for sale on this website comes in part from both the Broker Reciprocity Program of the South Jersey Shore Regional MLS and/or the Cape May County MLS, a voluntary cooperative exchange of property listing data between licensed real estate brokerage firms. The brokers providing these listings advise interested parties to do their due diligence before relying on this information in a purchase decision. The information being provided is for the consumer's personal, non-commercial use and may not be used for any purpose other than to identify prospective properties in which they may be interested in purchasing. All information deemed reliable, but not guaranteed. All properties are subject to change.