Residential

463 Route 47 N, Cape May Court House

$605,000

Property Details Property Details
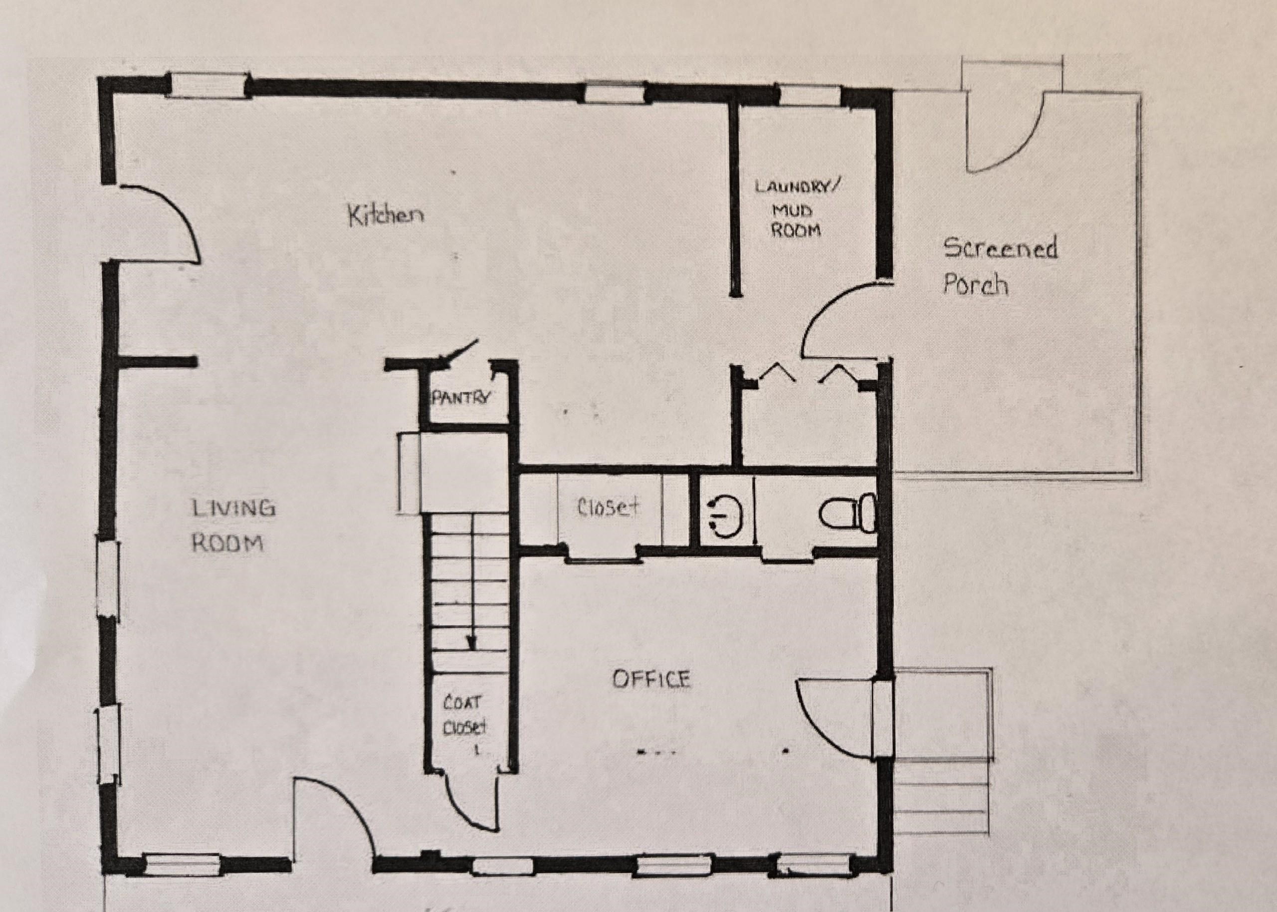
Discover the perfect blend of rustic charm and modern convenience in this beautiful farmhouse nestled on 4.5 acres in Cape May Court House. This home was just built in 2019 but was made to look as though it was from a bygone era and then thoughtfully updated with contemporary, efficient finishes. The interior includes 9-inch-wide white pine flooring from Maine throughout and solid wood trim and doors to bring the outdoors in. The stunning kitchen was recently remodeled with modern stainless-steel appliances, a propane serviced 36: 6 - burner Thor range, a filtration system and glass rinser at the kitchen sink, mini fridge in the island, granite counters and paneled refrigerator to blend in with the gorgeous custom wood cabinetry. The home boasts a whole house reverse osmosis water filtration system, Anderson double hung windows, durable metal roof and underground electric service with efficient Bryant heat pump, and 16 fully owned solar panels, placed on the detached garage fall of 2023 with newer roof, to assist in year round energy savings. The joists within the first floor ceiling have been extended over the kitchen to accommodate a future addition to be built above it. Rich, mahogany decking on the front and side screened porch, wide cedar plank siding, wood patterned screen porch, and split rail fencing all contribute to the warm, natural feel of the exterior that blends seamlessly into this private setting surrounded by mature trees. There is ample space for pets and play in the fenced yard, room for gardening outdoors and an attached glass and redwood lean-to greenhouse for nurturing plants indoors. A detached two car garage, with unfinished loft, offers potential for a guest suite, play area or creative space. The first floor of the home also offers a home office with half bath and private entry to be utilized in this Rural Conservation zoned district, where owners may have a home business. Peaceful, private, and move-in ready with the added potential to customize to your needs - dont miss this rare opportunity!

This listing is provided courtesy of CENTURY 21 ALLIANCE - NCM


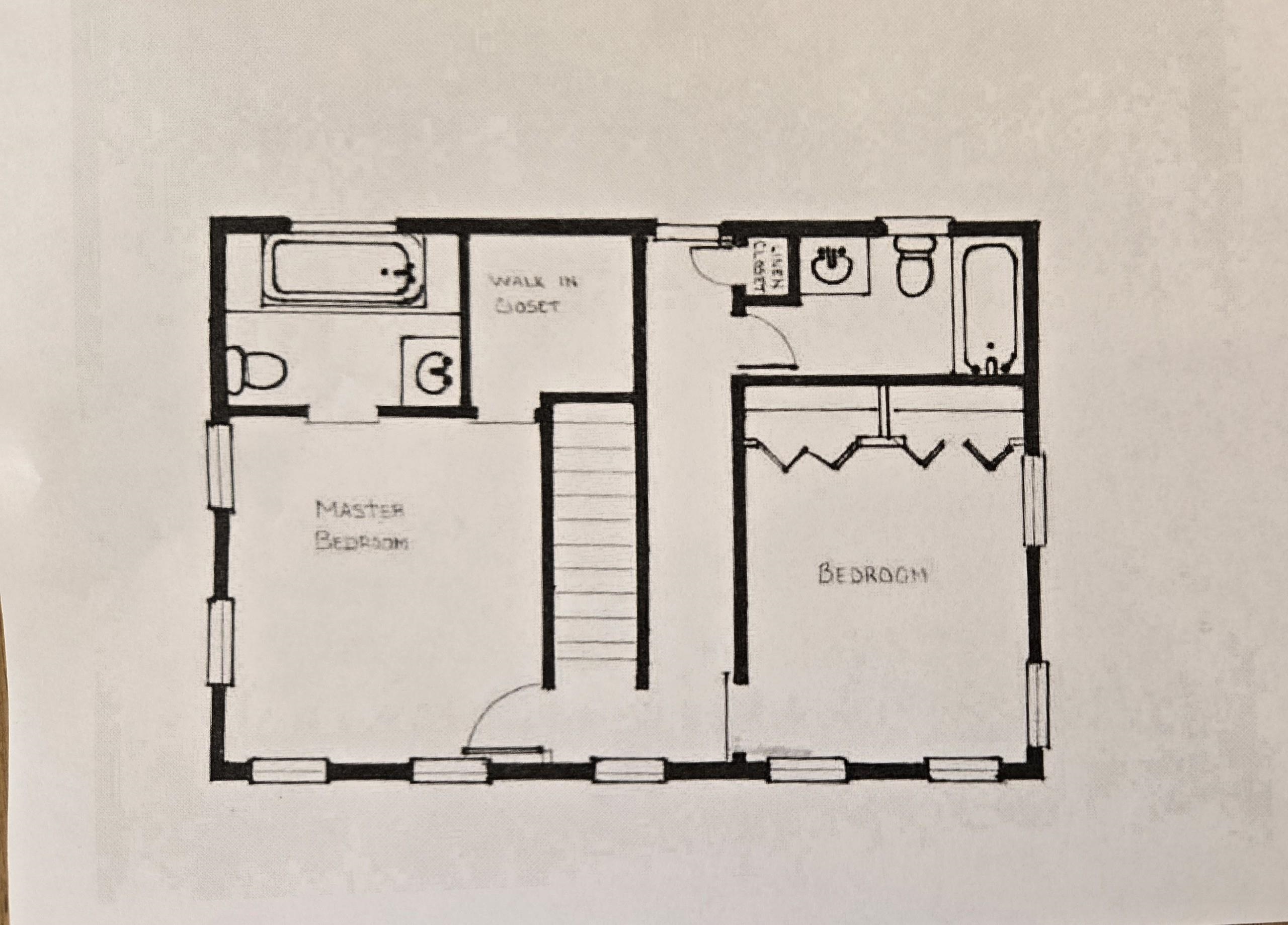
Bedroom 2 bedrooms
Full Bathroom 2 full baths
Half Baths 1 half baths

  • MLS #: 251435
  • Status: Sold
  • Address: 463 Route 47 N, Cape May Court House, NJ 08210
  • Date Listed: 5/10/2025
  • Days on Market: 328
  • Date Sold: 11/13/2025
  • Stipulations: No

Amenities Amenities
  • Range
  • Oven
  • Refrigerator
  • Washer
  • Dryer
  • Dishwasher
  • Smoke/Fire Detector
  • Stove Propane
  • Stainless steel appliance

Location Location

Interior Features Interior Features
  • Cool System: Central Air Condition, Ceiling Fan
  • Heat System: Electric, Heat Pump
  • Rooms: Living Room, Kitchen, Eat-In-Kitchen, Laundry/Utility Room
  • Interior: Greenhouse, Wood Flooring, Smoke/Fire Alarm, Storage, Walk in Closet, Wall to Wall Carpet, Cedar Closet, Tile Flooring, Kitchen Island, Beverage Refrigerator
  • Hot Water: Electric

Exterior Features Exterior Features
  • Parking: Garage, 2 Car, Detached, Auto Door Opener
  • Siding: Two Story
  • Exterior: Porch, Screened Porch, Fenced Yard
  • New Construction: No

Additional Features Additional Features
  • County: Cape May
  • Property Type: Single Family
  • Water/Sewer: Septic
  • Year Built: 2019
  • Lot Size: 4.5 Acres
  • Lot Number: 10
  • Block Number: 1
  • Associated Document Count: 4
  • District/Township: 06-Middle Township
  • For Sale / Lease: For Sale
  • Taxes: 6393
  • Total Rooms: 7
  • 3rd Party Approval: No

Disclaimer:The data relating to real estate for sale on this website comes in part from both the Broker Reciprocity Program of the South Jersey Shore Regional MLS and/or the Cape May County MLS, a voluntary cooperative exchange of property listing data between licensed real estate brokerage firms. The brokers providing these listings advise interested parties to do their due diligence before relying on this information in a purchase decision. The information being provided is for the consumer's personal, non-commercial use and may not be used for any purpose other than to identify prospective properties in which they may be interested in purchasing. All information deemed reliable, but not guaranteed. All properties are subject to change.